Pengubah Dipasang Pad 150 kVA-34.5/0.208 kV|Amerika Syarikat 2024
Kapasiti: 150kVA
Voltan: 34.5/0.208kV
Ciri: dengan fius bayonet

Penanda aras dalam pengagihan kuasa pintar – Tiga-Pad Fasa-Mounted Transformer mencipta kebimbangan-pengalaman tenaga percuma!
01 Am
1.1 Latar Belakang Projek
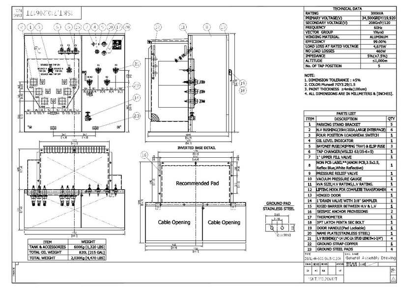
Pengubah yang dipasang pada pad tiga fasa 150 kVA ini telah dihantar ke Amerika Selatan pada tahun 2024. Kuasa undian pengubah ialah 150 kVA, dengan voltan primer 34.5GRDY/19.92 kV kepada voltan sekunder 0.208GrdY/0.12 kV. Kumpulan sambungan ialah YNyn0, penyejukan adalah ONAN. Transformer yang dipasang pada pad tiga fasa ialah peranti pengagihan kuasa padat yang menggabungkan -alat suis voltan tinggi, pengubah pengagihan,{11}}alat suis voltan rendah, peralatan pemeteran tenaga elektrik dan peranti pampasan kuasa reaktif dalam satu atau beberapa kotak mengikut skema pendawaian tertentu. Iaitu, kuasa voltan tinggi, langkah pengubah-turun, pengedaran voltan rendah dan fungsi lain digabungkan secara organik, dipasang dalam-kalis lembapan, kalis{15}}karat, kalis debu-, kalis api, anti-kecurian, penebat haba, tertutup sepenuhnya, kotak struktur keluli mudah alih, terkurung sepenuhnya, kotak struktur keluli mudah alih, terkurung sepenuhnya, mechatronics medan minyak, pelabuhan, lapangan terbang, bangunan awam bandar, kawasan perumahan, lebuh raya, kemudahan bawah tanah dan tempat-tempat lain.
1.2 Spesifikasi Teknikal
Spesifikasi transformer dipasang pad 750 KVA dan helaian data
|
Dihantar kepada
Amerika Selatan
|
|
tahun
2024
|
|
Model
150KVA-34.5GRDY/19.92-0.208GrdY/0.12KV
|
|
taip
Pengubah yang dipasang pada pad
|
|
Standard
IEEE C57.12.00
|
|
Kuasa Dinilai
150kVA
|
|
Kekerapan
60HZ
|
|
fasa
3
|
|
Jenis Penyejukan
ONAN
|
|
Voltan Utama
34.5GRDY/19.92 KV
|
|
Voltan Sekunder
0.208GrdY/0.12 KV
|
|
Bahan Penggulungan
aluminium
|
|
Anjakan sudut
YNyn0
|
|
Impedans
5.75%(±7.5%)
|
|
Ketik Penukar
NLTC
|
|
Julat Ketik
±2*2.5%
|
|
Tiada Kehilangan Beban
0.46KW
|
|
Mengenai Kehilangan Beban
4.675KW
|
|
Aksesori
Konfigurasi Standard
|
1.3 Lukisan
Lukisan rajah dan saiz transformer yang dipasang pad 300 KVA.
![]() |
![]() |
02 Pembuatan
2.1 Teras
Teras menggunakan kepingan keluli silikon berkualiti tinggi dan kebolehtelapan tinggi, proses berbilang-langkah, pengurangan hingar bes, kehilangan-beban yang rendah. Reka bentuk teras besi menggunakan struktur jenis "E-I" atau "cincin". Jenis E-I boleh mengurangkan kebocoran fluks dan kehilangan arus pusar dengan berkesan dengan menindih kepingan keluli silikon berbentuk E-dan saya-berbentuk bersama untuk membentuk litar magnet-tertutup. Teras anulus mengurangkan lagi kehilangan tenaga melalui reka bentuk anulus dan menyediakan laluan fluks yang lebih baik. Setiap kepingan keluli silikon ditebat, biasanya dengan cat penebat atau disalut dengan kertas penebat, yang mengurangkan penjanaan arus pusar. Proses laminasi teras besi menindih helaian ke dalam lapisan untuk memastikan kebolehtelapan teras besi sambil meminimumkan kehilangan histeresis teras besi.

2.2 Penggulungan

Penggulungan adalah komponen paling asas pengubah, iaitu bahagian litar yang mewujudkan medan magnet dan menghantar tenaga elektrik. Ia dililit oleh dawai aluminium yang dibalut dengan cat penebat (iaitu wayar enamel) dan diletakkan pada lajur teras besi pengubah. Penggulungan lapisan menggunakan pelbagai lapisan penebat, setiap lapisan dipisahkan oleh bahan penebat, yang membantu meningkatkan kekuatan penebat, mengurangkan risiko kerosakan elektrik, dan meningkatkan rintangan voltan dan keselamatan pengubah. Reka bentuk penggulungan lapisan memudahkan pengagihan seragam dan pelesapan haba. Ruang dan penebat antara setiap lapisan belitan membantu mengalirkan dan menghilangkan haba dengan cekap, mengurangkan risiko terlalu panas dan meningkatkan kebolehpercayaan operasi pengubah. Oleh kerana reka bentuk struktur lilitan lapisan boleh mengurangkan gangguan elektromagnet, lilitan lapisan membantu meningkatkan keserasian elektromagnet pengubah, mengurangkan kesan ke atas peralatan sekeliling, dan meningkatkan kestabilan sistem. Struktur berlapis penggulungan lapisan boleh memberikan kekuatan dan kestabilan mekanikal yang lebih baik, terutamanya dalam aplikasi voltan tinggi dan kuasa tinggi, dapat menahan tekanan dan getaran mekanikal dengan berkesan, dan memanjangkan hayat perkhidmatan pengubah.
2.3 Tangki
Proses kimpalan mesti memenuhi piawaian, termasuk kedudukan kimpalan, arus kimpalan, kelajuan kimpalan, dll. Sebelum mengimpal, bersihkan kawasan kimpalan untuk memastikan tiada minyak atau karat. Permukaan tangki hendaklah dirawat dengan penyingkiran karat dan letupan pasir untuk memastikan permukaan licin. Ia kemudiannya disalut untuk memastikan tangki itu tahan terhadap kakisan. Semua meterai dimeterai pada had akhir; Bahagian logam di dalam dan di luar kotak dibulatkan untuk mengeluarkan rambut, dan jahitan dan pengedap kimpalan diuji selama tiga kali (pendarfluor, tekanan positif, ujian kebocoran tekanan negatif); Cat dibuat mengikut keperluan pencegahan karat peralatan rumah tangga.

2.4 Perhimpunan Akhir


03 Ujian
1. Ujian rintangan DC.
2. Ujian rintangan penebat.
3. Pengukuran nisbah voltan dan kumpulan vektor.
4. Ujian voltan tahan AC punca berasingan.
5. Ujian voltan tahan AC teraruh.
6. Pengukuran Tiada-kehilangan beban dan tiada arus beban.
7. Beban pengukuran dan galangan.
8. Kehilangan rintangan dan kecekapan.
9. Ujian meterai.


04 Tapak dan Ringkasan
Terima kasih kerana berminat dengan tiga-pad fasa-transformer kami! Menggabungkan kebolehpercayaan dengan prestasi tinggi, produk kami merangkumi reka bentuk yang luar biasa untuk memenuhi keperluan anda untuk bekalan kuasa yang cekap, ketahanan dan keselamatan. Sama ada untuk kawasan komersial, aplikasi perindustrian atau penyelesaian tenaga boleh diperbaharui, kami berdedikasi untuk menyediakan anda dengan perkhidmatan profesional dan tersuai. Untuk maklumat lanjut atau penyelesaian yang disesuaikan, sila hubungi kami. Kami berharap dapat bekerjasama dengan anda untuk mencipta masa depan yang lebih cerah dalam penyelesaian kuasa!

Cool tags: 150 kva pad dipasang pengubah, pengilang, pembekal, harga, kos
You Might Also Like
75 kVA 3 Fasa Agihan Transformer-13.8/0.208 kV|Kanad...
Pengubah Pad 3000 kVA-23/0.38 kV|Salvador 2025
3000 kVA Transformer-25/0.6 kV|Kanada 2025
Pengubah Dipasang Pad 1500 kVA-34.5/0.48 kV|Amerika ...
1500 kVA Mount Transformer-22.86/0.208 kV|Amerika Sy...
2000 kVA Pad Mounted Distribution Transformer-4.16/0...
Hantar pertanyaan








