Pengubah Pelekap Pad 1500 kVA-13.8/0.46 kV|Guyana 2025
Kapasiti: 1500 kVA
Voltan: 13.8D-0.46Y/0.266 kV
Ciri: dengan termometer minyak atas

Grid Pintar Sedia,-Reka Bentuk Mesra Alam Sekitar – Pad-Transformer Dilekapkan untuk Hari Esok yang Lestari.
01 Am
1.1 Penerangan Projek
Pada tahun 2025, pengubah 1500 kVA tiga-pad fasa-dilekapkan telah berjaya dihantar ke Guyana. Direka bentuk dengan penyejukan ONAN, ia beroperasi pada voltan primer 13.8D kV dengan julat pengetuk NLTC ±2×2.5% dan voltan sekunder 0.46Y/0.266 kV, membentuk kumpulan vektor Dyn11. Projek ini dibangunkan untuk memenuhi keperluan khusus rangkaian pengedaran bandar, taman komersial dan zon perindustrian, menyediakan penukaran dan pengedaran kuasa voltan sederhana{12}}kepada{13}}rendah yang cekap. Pelanggan dalam sektor ini menghadapi beberapa cabaran:
Permintaan elektrik yang tinggi memerlukan peralatan pengedaran voltan sederhana yang stabil dan boleh dipercayai-ke-rendah.
Persekitaran luar yang kompleks memerlukan pengubah-tahan kakisan, kalis cuaca dan-tinggi.
Garis masa projek yang ketat, dengan keperluan untuk penghantaran cepat dan pemasangan yang dipermudahkan.
Meningkatkan keperluan untuk kecekapan tenaga dan penyelesaian mesra alam.
Dengan memanfaatkan keupayaan R&D tersuai kami, kami boleh melaraskan parameter pengubah mengikut keperluan beban dan memastikan penghantaran cepat. Unit ini diperakui CSA/UL dan dibina dengan-kepungan perlindungan tinggi dan bahan tahan lama untuk menjamin-pengoperasian luar jangka panjang yang stabil. Seorang pelanggan taman komersial berkata:
"Transformer ini mudah dipasang, tidak rosak-selama setengah tahun dan maklum balas pengilang adalah pantas."
Projek ini menunjukkan komitmen kami untuk menyampaikan peralatan pengedaran yang boleh dipercayai dan boleh disesuaikan yang menggerakkan operasi yang selamat dan cekap untuk pelanggan kami.
1.2 Spesifikasi Teknikal
Jenis spesifikasi transformer terpasang pad 1500 kVA dan helaian data
|
Dihantar kepada
Guyana
|
|
tahun
2025
|
|
taip
Pengubah yang dipasang pada pad
|
|
Standard
IEEE StdC57.12.34-2022
|
|
Kuasa Dinilai
1500 kVA
|
|
Kekerapan
60HZ
|
|
fasa
3
|
|
suapan
gelung
|
|
Depan
Mati
|
|
Jenis Penyejukan
ONAN
|
|
Voltan Utama
13.8D kV
|
|
Voltan Sekunder
0.46Y/0.266 kV
|
|
Bahan Penggulungan
Tembaga
|
|
Anjakan sudut
Dyn11
|
|
Impedans
5.75%
|
|
Ketik Penukar
NLTC
|
|
Julat Ketik
±2*2.5%
|
|
Tiada Kehilangan Beban
2.1 kW
|
|
Mengenai Kehilangan Beban
15.4 kW
|
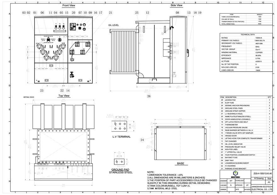
1.3 Lukisan
Lukisan rajah transformer dipasang pad 1500 kVA dan saiz.
![]() |
![]() |
02 Pembuatan
2.1 Teras
Transformer mempunyai-tiga fasa-kecekapan tinggi, tiga-teras tindanan anggota yang diperbuat daripada pelapis keluli silikon berorientasikan biji-, meminimumkan tiada-kehilangan beban dan memastikan fluks magnet yang seimbang. Ketepatan-reka bentuk berlapis, terlindung mengurangkan getaran dan hingar sambil meningkatkan ketahanan.

2.2 Penggulungan

Pengubah ini menggunakan reka bentuk penggulungan yang dioptimumkan dengan-gegelung kerajang voltan rendah untuk kapasiti arus yang dipertingkatkan dan-lapisan voltan tinggi-gegelung luka untuk kekuatan dielektrik yang unggul. Pembinaan gegelung teguh pengubah menampilkan ketepatan-konduktor kuprum/aluminium luka, vakum-diresapi untuk integriti penebat maksimum dan prestasi terma. Konfigurasi gegelung dan pengubah yang padat namun tahan lama ini memastikan pemindahan kuasa yang cekap, daya tahan litar-pendek yang sangat baik dan kebolehpercayaan-jangka panjang dalam menuntut aplikasi pengedaran.
2.3 Tangki
Pengubah yang dipasang pada pad 1500kVA-ini menampilkan tangki tugas berat-untuk minyak, dibina daripada keluli tahan karat-dengan kimpalan bertetulang untuk ketahanan yang unggul. Tangki dimeterai secara hermetik untuk mengelakkan kelembapan dan pencemaran, manakala paras minyak/tolok tekanan bersepadu membolehkan pemantauan mudah. Direka bentuk untuk pelbagai persekitaran, tangki minyak yang teguh ini memastikan penebat dan penyejukan yang boleh dipercayai, dengan radiator untuk prestasi terma yang dipertingkatkan.

2.4 Perhimpunan Akhir

1. Pemasangan Penggulungan:Luncurkan tiga-belitan voltan tinggi-dan rendah-kepada tiga-teras anggota, memastikan penjajaran komponen penebat yang betul.
2. Sambungan Elektrik:Sambungkan belitan membawa kepada penukar pili, sesendal dan komponen lain, kemudian selamatkan dan penebat sambungan.
3. Teras-Pengeringan Gegelung:Letakkan bahagian aktif yang dipasang (teras dan belitan) ke dalam ketuhar pengeringan untuk pengeringan vakum untuk menghilangkan lembapan dan meningkatkan penebat.
4. Kemasukan Tangki:Angkat bahagian aktif yang kering ke dalam tangki, selamatkan struktur sokongan, dan pastikan pembumian dan kestabilan mekanikal yang betul.
5. Pemasangan Aksesori:Lekapkan sesendal, peranti pelepas tekanan, tolok aras minyak dan aksesori lain, menutup semua antara muka.
6. Pengisian & Pengedap Minyak:Vakum-isi minyak penebat transformer ke tahap yang ditentukan, periksa kebocoran dan lakukan ujian elektrik akhir (cth, nisbah, tahan voltan).
03 Lekapan Ujian Transformer
Dayakan Sambungan:Untuk memautkan sumber kuasa ujian besar-besaran (seperti-bekalan kuasa frekuensi pembolehubah atau penjana voltan impuls) kepada pelbagai terminal pengubah.
Simulasi Keadaan Operasi:Untuk mencipta persekitaran yang mungkin dihadapi oleh pengubah semasa operasi sebenar atau kerosakan, seperti voltan tinggi, arus tinggi, litar pintas dan kenaikan suhu.
Pastikan Keselamatan:Untuk menjamin jarak penebat yang selamat dan pembumian yang boleh dipercayai untuk litar-voltan tinggi dan-tinggi, melindungi kedua-dua kakitangan dan peralatan.
Tingkatkan Ketepatan:Untuk meminimumkan impedans dan kerugian yang diperkenalkan oleh sambungan luaran, memastikan ketepatan hasil pengukuran.
Tingkatkan Kecekapan:Lekapan standard membolehkan persediaan dan ujian pantas, meningkatkan kecekapan ujian keseluruhan dengan ketara.


04 Lain-lain
4.1 Kecekapan Tenaga JAS
Istilah "Kecekapan Tenaga DOE" untuk Pad-Mounted Transformers merujuk kepada piawaian kecekapan tenaga minimum mandatori yang ditetapkan oleh Jabatan Tenaga AS. Piawaian ini bertujuan untuk meningkatkan kecekapan grid keseluruhan dengan mengehadkan tiada-beban dan kehilangan beban komponen kritikal ini dalam sistem pengedaran bawah tanah. Untuk mematuhinya, pengilang mesti menggunakan bahan termaju seperti-gred tinggi keluli silikon atau aloi amorf dan mengoptimumkan reka bentuk pemasangan teras dan gegelung. Akibatnya, memenuhi piawaian kecekapan tenaga DOE berfungsi sebagai keperluan akses pasaran asas untuk Amerika Utara dan penunjuk utama -prestasi penjimatan tenaga dan kos kitaran hayat-pengubah.

4.2 Sesendal dengan baik

Telaga sesendal ialah komponen yang digunakan dalam peralatan elektrik seperti transformer dan suis-ia berfungsi sebagai-struktur sesendal rongga yang direka untuk menempatkan pemasangan penyambung seperti sisipan sesendal. Tujuan terasnya adalah untuk mengikat kabel dan konduktor dengan selamat di dalam peralatan, dan untuk membolehkan sambungan yang boleh dipercayai antara kabel luaran dan peranti dengan menampung komponen sisipan yang sepadan. Sebagai bahagian antara muka yang penting dalam sistem kuasa, ia memainkan peranan penting dalam menyediakan sambungan yang selamat dan stabil antara-kabel voltan tinggi dan peralatan elektrik.
05 Tapak dan Ringkasan
Kedudukan:Angkat dan tetapkan pengubah pada asas konkrit pra{0}}, memastikan penjajaran dan kestabilan yang betul.
Sambungan:Tamatkan dan sambungkan kabel voltan-tinggi dan{1}}rendah ke sesendal menggunakan-terminal kabel pra-fabrikasi. Pulihkan semua sambungan pembumian.
pengedap:Kencangkan penutup tangki dengan selamat mengikut turutan dan spesifikasi tork yang ditentukan untuk memastikan integriti tangki yang lengkap.
Pengisian Minyak:Isi tangki dengan minyak ke paras yang betul menggunakan kaedah pengisian vakum untuk menghilangkan poket udara.
Ujian & Penyerahan:Lakukan ujian pentauliahan yang diperlukan, pasang penghadang pelindung dan tanda amaran, dan selesaikan penyerahan keselamatan.

Cool tags: 1500 kva pad mount transformer,pengilang,pembekal,harga,kos
You Might Also Like
2500 kVA Pengubah Elektrik Kediaman-34.5/0.6 kV|Amer...
Pengubah Pelekap Pad 225 kVA-34.5/0.208 kV|Amerika S...
Pengubah Pelekap Pad 2500 kVA-12.47/0.48 kV|Amerika ...
Pengubah Dipasang Pad 1500 kVA-34.5/0.48 kV|Amerika ...
500 kVA Pad Utiliti Dipasang Transformer-24/0.48 kV|...
5 MVA Pad Mount Transformers-33/0.48 kV|Amerika Syar...
Hantar pertanyaan











