Pengubah Pelekap Pad 2500 kVA-12.47/0.48 kV|Amerika Syarikat 2025
Kapasiti: 2500 kVA
Voltan: 12.47GrdY/7.2-0.48Y/0.277kV
Ciri: dengan peruntukan penambat IFD dan seismik

Direka untuk Keselamatan, Dibina untuk Prestasi – Percayai Pad Kami-Transformer Dipasang!
01 Am
1.1 Penerangan Projek
2500 kVA pengubah yang dipasang pad tiga fasa telah dihantar ke Amerika pada tahun 2025. Kuasa undian pengubah ialah 2500 kVA dengan penyejukan ONAN. Voltan utama ialah 12.47GrdY/7.2 kV dengan julat penorehan ±2*2.5% (NLTC), voltan sekunder ialah 0.48Y/0.277 kV, mereka membentuk kumpulan vektor YNyn0.
Pad kami-Mounted Transformer direka bentuk untuk prestasi unggul, kebolehpercayaan dan keselamatan dalam utiliti dan pengagihan kuasa industri. Direka bentuk dengan sistem Pengesanan Kesalahan Dalaman (IFD), ia memastikan amaran awal tentang potensi isu, meminimumkan masa henti. Suis pemutus beban 4-kedudukan membolehkan operasi yang fleksibel dan pengasingan yang selamat, manakala penukar paip tidak bertenaga (DETC) mendayakan peraturan voltan yang tepat tanpa mengganggu perkhidmatan.
Dibina untuk menahan keadaan yang teruk, pengubah ini mempunyai peruntukan penambat seismik untuk rintangan gempa bumi yang dipertingkatkan. Pemantauan kritikal dipermudahkan dengan termometer minyak atas, tolok aras minyak dan tolok tekanan vakum untuk diagnostik masa-sebenar. Keselamatan diperkukuh lagi dengan peranti pelepas tekanan, fius bayonet dan fius ELSP (Pengusiran), memastikan beban lampau dan perlindungan kerosakan.
Sesuai untuk rangkaian pengedaran bawah tanah, pengubah mesra-teguh dan penyelenggaraan ini memberikan kuasa yang cekap,{1}}bertahan lama dalam kepungan yang padat dan selamat.
1.2 Spesifikasi Teknikal
Jenis spesifikasi transformer terpasang pad 2500 kVA dan helaian data
|
Dihantar kepada
Amerika
|
|
tahun
2025
|
|
taip
Pengubah yang dipasang pada pad
|
|
Standard
IEEE Std C57.12.34-2022
|
|
Kuasa Dinilai
2500 kVA
|
|
Kekerapan
60HZ
|
|
fasa
3
|
|
suapan
gelung
|
|
Depan
Mati
|
|
Jenis Penyejukan
ONAN
|
|
Voltan Utama
12.47/7.2 kV
|
|
Voltan Sekunder
0.48Y/0.277 kV
|
|
Bahan Penggulungan
aluminium
|
|
Anjakan sudut
0.48Y/0.277 kV
|
|
Impedans
5.75%
|
|
Ketik Penukar
NLTC
|
|
Julat Ketik
±2*2.5%
|
|
Tiada Kehilangan Beban
2.4 kW
|
|
Mengenai Kehilangan Beban
15.79 kW
|
|
Aksesori
Konfigurasi Standard
|
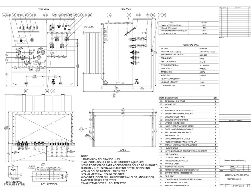
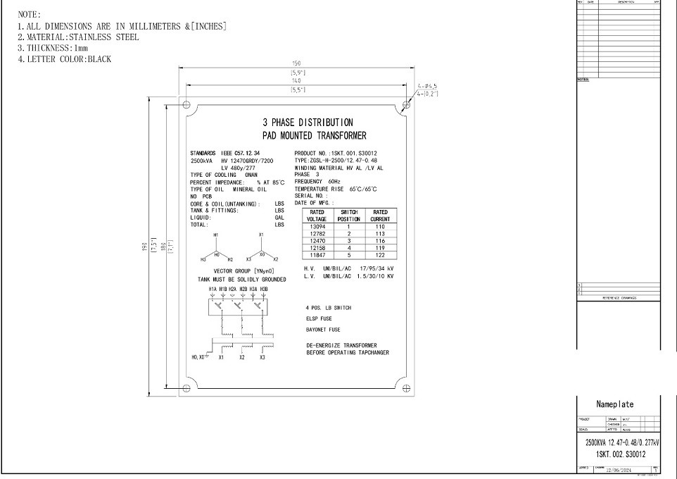
1.3 Lukisan
Lukisan rajah transformer dipasang pad 2500 kVA dan saiz.
![]() |
![]() |
02 Pembuatan
2.1 Sokongan sesendal
Lebih banyak port yang ada pada sesendal voltan-rendah, lebih lama lug terminal yang sepadan tumbuh. Apabila lug ini (dengan berbilang port) bersambung ke berbilang kabel berat, atau apabila sambungan lug digunakan, sokongan sesendal voltan rendah -diperlukan.
Terlalu banyak kabel berat memberikan tekanan ke bawah pada sesendal yang tidak disokong, memampatkan bahagian bawah gasket sesendal (antara sesendal dan dinding tangki) dari semasa ke semasa. Ini boleh menyebabkan minyak transformer bocor dari bahagian atas gasket.
Sokongan sesendal menambah ketegangan ke atas pada sesendal, mengatasi tarikan ke bawah kabel. Ini mengurangkan ketegangan pada pemasangan sesendal, mengelakkan pemampatan gasket dan kebocoran.

2.2 fius bayonet

Fius bayonet ialah-fius pengusiran standard industri, digunakan secara meluas dalam pengubah padmount dan sistem pengagihan kuasa. Menampilkan unsur boleh lebur nipis yang cair di bawah arus lebih atau suhu tinggi, ia mencetuskan arka dalaman apabila diaktifkan-arka ini berinteraksi dengan lapisan khas perumahan fius untuk menjana gas, memadamkan arka dengan pantas dan memotong aliran arus.
Jenis biasa termasuk penderiaan semasa, penderiaan dwi, elemen dwi dan pautan fius -tinggi. Fius ini melindungi transformer daripada bahaya biasa seperti terlalu panas, lebihan beban, kerosakan sekunder dan litar pintas-rendah. Setelah isu itu diselesaikan oleh juruteknik, fius boleh diganti untuk-memberi tenaga semula kepada pengubah.
2.3 Tangki
Tangki dibina daripada keluli tahan karat yang dikimpal, menawarkan rintangan kakisan yang sangat baik dan kekuatan mekanikal untuk pelbagai aplikasi luaran. Dilengkapi dengan-sirip penyejukan berkecekapan tinggi, tangki itu meningkatkan kapasiti pelesapan haba dengan ketara dengan meningkatkan kawasan permukaan penyejukan, memastikan operasi jangka-panjang yang stabil. Reka bentuknya yang tertutup sepenuhnya mengandungi minyak penebat dan menggabungkan peranti pelepas tekanan, dengan berkesan menghalang pencemaran luaran sambil menampung turun naik tekanan dalaman yang disebabkan oleh variasi suhu minyak.

2.4 IFD

Sistem IFD (Pengesanan Kesalahan Penebat) dalam pengubah-dilekapkan pad ialah peranti pemantauan dalam talian bersepadu yang secara berterusan menganalisis gas terlarut-terutamanya hidrogen-dalam minyak penebat. Dengan mengesan kesan awal gas yang dihasilkan oleh kerosakan penebat baru, seperti nyahcas separa atau terlalu panas, ia memberikan amaran lanjut jauh sebelum kegagalan yang serius berlaku. Ini membolehkan penyelenggaraan proaktif, meningkatkan keselamatan operasi, dan meningkatkan kebolehpercayaan dan hayat perkhidmatan pengubah dengan ketara.
03 Ujian
Ujian Rintangan Penebat:- Uji rintangan penebat pengubah untuk memastikan bahawa semua komponen (seperti penebat antara belitan dan tanah, dan antara belitan) mempunyai keupayaan penebat yang mencukupi untuk mengelakkan kebocoran semasa atau litar pintas.
- Ujian rintangan penebat biasanya dijalankan menggunakan ohmmeter, dengan julat pengukuran biasanya antara beberapa ratus megohm hingga beberapa ribu megohm.


04 Pembungkusan
Dibina daripada keluli tahan karat yang dikimpal untuk rintangan kakisan yang unggul dan kekuatan mekanikal, tangki ini direka bentuk untuk berfungsi dengan pasti dalam tetapan luar yang pelbagai. Sirip penyejukan berkecekapan tinggi-nya meningkatkan pengurusan terma dengan ketara dengan meluaskan kawasan permukaan penyejukan yang berkesan, sekali gus memastikan kestabilan operasi yang mampan dalam tempoh yang panjang. Reka bentuk tertutup rapat, diisi dengan minyak dielektrik dan dilengkapi dengan mekanisme pelepasan tekanan bersepadu, berkesan menghalang kemasukan bahan cemar luaran sambil menampung variasi tekanan dalaman yang disebabkan oleh pengembangan haba.

05 Tapak dan Ringkasan
Sebagai asas sistem pengedaran yang boleh dipercayai, pengubah yang dipasang pada pad kami-menggabungkan reka bentuk inovatif dengan ketukangan yang rapi, memberikan kecekapan dan ketahanan yang tiada tandingan untuk aplikasi luar yang pelbagai. Daripada penyelesaian tersuai kepada penghantaran global, kami komited untuk menyediakan penyelesaian kuasa yang selamat dan pintar, memperkasakan masa depan grid yang lebih berdaya tahan.

Cool tags: 2500 kva pad mount transformer,pengilang,pembekal,harga,kos
You Might Also Like
75 kVA 3 Fasa Pelekap Pelekap Transformer-24.94/0.20...
500 kVA Pengubah Agihan Tiga Fasa-4.16/0.6 kV|Kanada...
Pemasangan Pad 75 kVA-23/0.208 kV|Amerika Syarikat 2025
3000 kVA Transformer-25/0.6 kV|Kanada 2025
500 kVA Pad Utiliti Dipasang Transformer-24/0.48 kV|...
Harga Transformer Dipasang Pad 1500 kVA-23.9/0.416 K...
Hantar pertanyaan





