2500 KVA Ground Mount Transformer-12.47/0.6 KV|Amerika Syarikat 2025
Kapasiti: 2500 kVA
Voltan: 12.47/0.6kV
Ciri: dengan minyak FR3
Jiangshan Scotech Electrical Co., Ltd ialah salah satu pengeluar dan pembekal yang paling boleh dipercayai bagi pengubah lekap tanah 2500 kva-12.47/0.6 kv|usa 2025 di China. Sila berasa bebas untuk membeli produk yang menjimatkan kos untuk dijual di sini dan dapatkan gambar rajah dari kilang kami. Hubungi kami untuk butiran lanjut.

Menyampaikan Tenaga, Memelihara Nilai: Transformer Dipasang Pad Termaju.
01 Am
1.1 Penerangan Projek
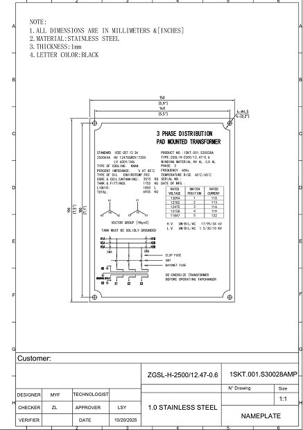
Pengubah lekap tanah 2500 kVA telah dihantar ke Amerika Syarikat pada tahun 2025. Kuasa undian pengubah ialah 2500 kVA dengan penyejukan KNAN. Voltan tinggi ialah 12.47GRDY/7.2 kV dengan ±2*2.5% julat tapping (NLTC), voltan rendah ialah 0.6Y/0.346 kV, mereka membentuk kumpulan vektor YNyn0.
Transformer menggunakan struktur teras tiga-tiga-anggota badan, yang memastikan prestasi litar magnetik yang stabil, mengurangkan kehilangan besi secara berkesan dan meningkatkan kebolehpercayaan operasi. Ia diisi dengan minyak FR3 sebagai medium penebat dan penyejukan, minyak penebat mesra alam -berkualiti tinggi yang mempunyai kestabilan haba yang sangat baik, rintangan api dan kebolehbiodegradasian, memberikan perlindungan menyeluruh untuk komponen dalaman pengubah sambil mematuhi keperluan perlindungan alam sekitar.
Dari segi kecekapan tenaga, produk ini mematuhi piawaian kecekapan DOE dengan tegas, mengoptimumkan reka bentuk teras dan penggulungan untuk meminimumkan tiada-kehilangan beban dan kehilangan beban, merealisasikan penjimatan tenaga dan pengurangan penggunaan semasa operasi-jangka panjang, dan membawa manfaat ekonomi yang besar kepada pengguna. Untuk memastikan operasi yang selamat, pengubah dilengkapi dengan lengan pembumian skrin pengasingan, yang digunakan khas untuk sistem perisai pembumian. Konfigurasi ini boleh menyekat gangguan elektromagnet dengan berkesan, mengurangkan nyahcas separa, dan melindungi pengubah daripada potensi bahaya elektrik, memastikan keselamatan peralatan dan grid kuasa.
Secara luaran, pengubah mempunyai kemasan putih bersalut serbuk (RAL 9003), yang bukan sahaja menawarkan rintangan kakisan dan rintangan cuaca yang sangat baik untuk menyesuaikan diri dengan pelbagai persekitaran luar yang keras, tetapi juga memberikan penampilan yang bersih dan kemas, digabungkan dengan baik dengan senario pemasangan yang berbeza. Secara keseluruhan, pengubah yang dipasang pada pad ini menggabungkan perlindungan alam sekitar, kecekapan tinggi, keselamatan dan ketahanan, menjadikannya pilihan ideal untuk projek pengagihan kuasa bandar dan luar bandar.
1.2 Spesifikasi Teknikal
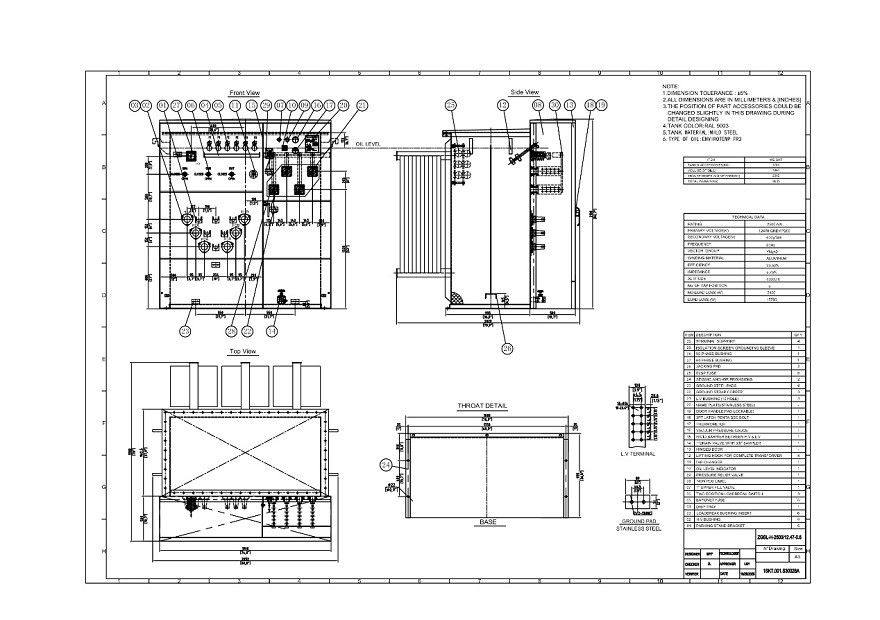
Jenis spesifikasi transformer lekap tanah 2500 kVA dan helaian data
|
Dihantar kepada
AS
|
|
tahun
2025
|
|
taip
Pengubah yang dipasang pada pad
|
|
Standard
IEEE Std C57.12.34-2022
|
|
Kuasa Dinilai
2500 kVA
|
|
Kekerapan
60HZ
|
|
fasa
3
|
|
suapan
gelung
|
|
Depan
Mati
|
|
Jenis Penyejukan
KNAN
|
|
Voltan Utama
12.47GRDY/7.2 kV
|
|
Voltan Sekunder
0.6Y/0.346 kV
|
|
Bahan Penggulungan
aluminium
|
|
Kumpulan Vektor
YNyn0
|
|
Impedans
5.75%
|
|
Kecekapan
99.53%
|
|
Ketik Penukar
NLTC
|
|
Julat Ketik
±2*2.5%
|
|
Tiada Kehilangan Beban
2.4 kW
|
|
Mengenai Kehilangan Beban
15.79 kW
|
1.3 Lukisan
2500 kVA pad dipasang lukisan rajah transformer dan saiz.
![]() |
![]() |
02 Pembuatan
2.1 Sesendal H0

Sesendal H0 pada pengubah lekap tanah ialah antara muka berkadar-terlindung sepenuhnya, boleh tenggelam-untuk menyambungkan kabel voltan tinggi-bawah tanah (biasanya 15/25 kV). Reka bentuk elastomerik sekeping padat,-nya menyediakan sambungan yang selamat sepenuhnya,-tidak terdedah dengan menyepadukan perisai konduktif luar yang dibumikan. Ciri utama selalunya termasuk titik ujian dan peruntukan untuk palam{10}}aksesori seperti penunjuk kerosakan atau penangkap, menjadikannya komponen bebas penyelenggaraan-yang teguh untuk sistem pengedaran bawah tanah.
2.2 Suis Pemutus Beban Dua Kedudukan
Suis pemutus beban dua-kedudukan pada pengubah lekap tanah ialah komponen kawalan kritikal untuk sistem pengedaran bawah tanah, hanya menampilkan dua keadaan operasi: "Tertutup" untuk menghidupkan litar dan "Buka" untuk menyah-tenaganya, tanpa kedudukan perantaraan. Kejuruteraan untuk membuat dan memecahkan arus beban dengan selamat di bawah keadaan operasi biasa, berbilang suis sering digunakan secara serentak untuk membolehkan kawalan fleksibel bagi laluan litar yang berbeza (cth, talian penyuap A dan B), menyokong pengagihan kuasa yang boleh dipercayai daripada pengubah ke grid.

2.3 Sokongan Sesendal LV

Sokongan sesendal LV untuk transformer-dilekapkan pad ialah aksesori pelindung kritikal yang menggunakan tegangan ke atas pada sesendal-voltan rendah, mengimbangi berat menurun bagi berbilang kabel yang disambungkan-terutama apabila 8 atau lebih kabel dipasang atau sambungan spade digunakan. Dengan melegakan ketegangan pada pemasangan sesendal dan gasket pengedapnya, ia menghalang gasket daripada dihancurkan pada dinding tangki pengubah, dengan itu mengelakkan kebocoran minyak pengubah dan mengekalkan pengedap hermetik untuk kebolehpercayaan operasi-jangka panjang.
2.4 Perisai Pembumian
Perisai pembumian dalam pengubah lekap tanah ialah lapisan konduktif kritikal, biasanya disambungkan kepada potensi bumi, yang mengelilingi komponen dalaman yang hidup. Fungsi utamanya adalah untuk memastikan keselamatan dengan menahan dan mengalihkan arus kerosakan ke tanah dengan selamat, menghalang kepungan pengubah daripada menjadi bertenaga dan melindungi kakitangan. Pada masa yang sama, ia menyediakan perisai elektromagnet yang penting, yang meminimumkan gangguan daripada persekitaran luaran dan mengurangkan tekanan pada penebat pengubah, dengan itu meningkatkan kebolehpercayaan operasi dan jangka hayat. Ciri penting ini menyokong permintaan grid moden untuk daya tahan dan keserasian dengan sistem pemantauan keadaan dalam rangkaian kuasa yang berkembang.

2.5 Sesendal HV

Sesendal HV (-voltan tinggi) pengubah yang dipasang-adalah komponen sambungan berpenebat kritikal, biasanya tersedia dalam penarafan voltan 15KV, 25KV dan 35KV (cth, siri LBI200) dan mematuhi piawaian IEEE 386. Ia berfungsi sebagai antara muka antara belitan utama dalaman pengubah dan kabel pengedaran luaran, menampilkan reka bentuk palam yang tertutup-dengan bahan penebat seperti epoksi atau kaca-damar nilon bertetulang untuk memastikan penebat elektrik yang unggul dan kestabilan mekanikal. Sendal ini menghalang kebocoran minyak transformer dan kelembapan/pencerobohan habuk sambil meminimumkan risiko denyar arka semasa penyelenggaraan, menyokong beban selamat-operasi pecah dan{14}}fungsi ganti medan untuk pengagihan kuasa luar yang boleh dipercayai.
03 Ujian
Pengukuran Rintangan Penebat ialah ujian diagnostik asas untuk-transformer yang dipasang pada pad, dijalankan untuk menilai integriti dan kualiti sistem penebat antara belitan dan antara belitan dengan tanah. Biasanya dilakukan menggunakan megohmmeter (Megger), ujian menggunakan voltan DC tinggi untuk mengukur rintangan penebat. Bacaan yang tinggi dan stabil menunjukkan kekuatan dielektrik yang kuat dan penebat kering yang sihat, manakala nilai rintangan yang rendah atau menurun boleh menandakan isu yang berpotensi seperti kemasukan lembapan, pencemaran, penuaan penebat atau kerosakan fizikal. Ujian rutin ini adalah penting untuk penyelenggaraan ramalan, membantu mencegah kegagalan, memastikan keselamatan kakitangan, dan memanjangkan hayat operasi pengubah dalam rangkaian pengedaran.
04 Tapak dan Ringkasan
Memilih pad kami-transformer yang dipasang bermakna melabur bukan sahaja dalam peralatan elektrik, tetapi dalam-keselamatan jangka panjang, nilai luar biasa dan kebolehpercayaan yang tidak berbelah bahagi untuk rangkaian pengagihan kuasa anda. Dengan pembinaan lasak, teknologi pembumian dan penebat termaju serta-kesediaan terbina untuk penyepaduan grid pintar, produk kami memastikan prestasi yang boleh dipercayai dalam persekitaran yang paling mencabar sambil mengoptimumkan jumlah kos pemilikan. Biarkan kepakaran kejuruteraan kami yang terbukti dan komitmen terhadap kualiti menjadikan kami rakan kongsi anda yang dipercayai dalam membina grid yang lebih selamat, cekap dan berdaya tahan. Hubungi kami hari ini untuk mencari penyelesaian kuasa yang sempurna untuk projek anda.

Cool tags: pengubah lekap tanah, pengilang, pembekal, harga, kos
You Might Also Like
Pengubah Pelekap Pad 225 kVA-34.5/0.208 kV|Amerika S...
4000 kVA 3 Fasa Dipasang Transformer-24.94/0.6 kV|Ka...
1500 kVA Mount Transformer-22.86/0.208 kV|Amerika Sy...
Pad Transformer 2500 kVA-12.47/0.48 kV|Amerika Syari...
Kotak pengubah elektrik 500 kVA-12.47*4.16/0.208 kV|...
Transformer Tugas Suria 1000 KVA-12.47/0.48 KV|Ameri...
Hantar pertanyaan











