Pengubah Dipasang Pad 2250 kVA-12.47/0.6 kV|Amerika Syarikat 2025
Kapasiti: 2250kVA
Voltan: 12.47GrdY/7.2-0.6Y/0.347kV
Ciri: Dengan minyak FR3

Transformer dipasang pad 2250 kVA-dicipta untuk ladang solar, dibina untuk keselamatan, kecekapan dan masa depan tenaga yang lebih hijau
01 Am
1.1 Latar Belakang Projek
Untuk menyokong penggunaan sistem tenaga suria yang semakin meluas di pasaran AS, kami menyampaikan pengubah dipasang tiga-pad fasa-2250 kVA yang khusus disesuaikan untuk aplikasi fotovoltaik (PV) skala utiliti-. Direka bentuk dengan struktur teras lima-kaki yang teguh dan konfigurasi suapan-depan, gelung-mati, unit ini memastikan keselamatan, kebolehpercayaan dan fleksibiliti sistem dalam persekitaran tenaga boleh diperbaharui.
iniPengubah yang dipasang pad 2250 kvaberoperasi dengan voltan primer 12.47 GrdY/7.2 kV dan voltan sekunder 0.6Y/0.347 kV, menjadikannya sesuai untuk antara muka dengan penyongsang suria dan rangkaian pengedaran hiliran. Kumpulan vektor YNyn0 mendayakan pembumian yang berkesan dan memudahkan-sambungan beban tiga fasa-rendah dalam ladang solar. Dengan belitan aluminium, unit ini menawarkan keseimbangan antara prestasi dan kecekapan kos.
Built with FR3 natural ester fluid, the transformer achieves a high level of environmental sustainability and fire safety, thanks to its high flash point (>300 darjah ) dan biodegradasi. Reka bentuk KNAN (udara semula jadi-disejukkan) mengurangkan kerumitan operasi dan keperluan penyelenggaraan sambil memastikan prestasi terma yang cemerlang.
Dihantar mengikut jadual, pengubah ini menyumbang secara langsung kepada pengembangan infrastruktur solar pelanggan, menyokong matlamat nasional yang lebih luas iaitu penyahkarbonan dan pemodenan grid. Ia menunjukkan keupayaan kami untuk merekayasa peralatan gred-berprestasi tinggi, utiliti-untuk keperluan berkembang sektor tenaga boleh diperbaharui.
1.2 Spesifikasi Teknikal
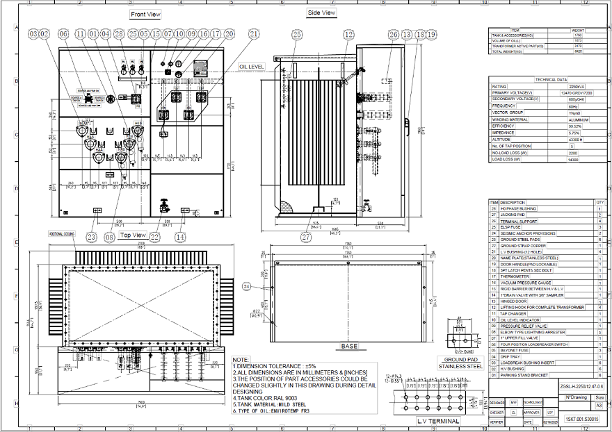
Spesifikasi transformer dipasang pad 2250 kVA dan helaian data
|
Dihantar kepada
Amerika
|
|
tahun
2025
|
|
taip
Pengubah lekap pad tiga fasa
|
|
Standard
IEEE Std C57.12.34-2022
|
|
Kuasa Dinilai
2250 kVA
|
|
Kekerapan
60 HZ
|
|
suapan
gelung
|
|
Depan
Mati
|
|
fasa
Tiga
|
|
Jenis Penyejukan
KNAN
|
|
Penebat cecair
Minyak FR3
|
|
Voltan Utama
12.47 kV
|
|
Voltan Sekunder
0.6 Kv
|
|
Kumpulan Vektor
YNyn0
|
|
Bahan Penggulungan
aluminium
|
|
Impedans
5.75%
|
|
Kecekapan
99.52%
|
|
Ketik Penukar
NLTC
|
|
Julat Ketik
±2*2.5%
|
|
Tiada Kehilangan Beban
2.4 kW
|
|
Mengenai Kehilangan Beban
15.79 kW
|
|
Aksesori
Konfigurasi Standard
|
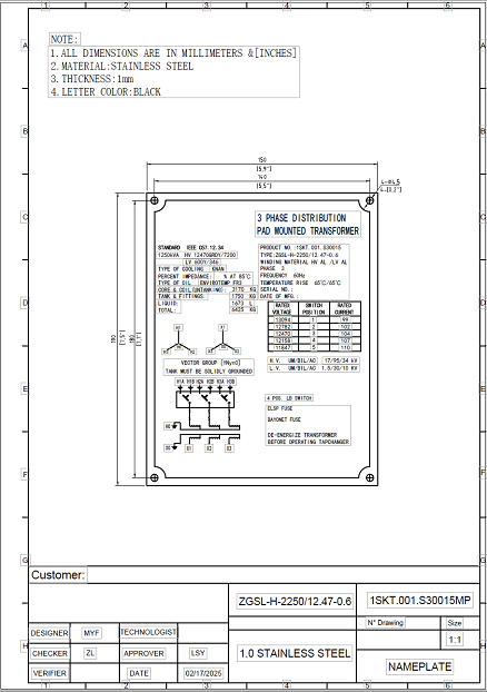
1.3 Lukisan
Dimensi pengubah dipasang pad 2250 kVA dan butiran berat
![]() |
![]() |
02 Pembuatan
2.1 Teras
Reka bentuk lima-teras kaki memastikan pengendalian sifar-fluks jujukan dan keadaan pemuatan tidak seimbang, yang biasa berlaku dalam sistem tenaga teragih. Pembinaan depan-gelung dan mati-nya sejajar dengan piawaian keselamatan AS dan membolehkan pemasangan yang mudah di medan suria, pencawang dan kawasan akses awam-.

2.2 Penggulungan

Pengubah yang dipasang pad 2250 kva ini menampilkan-belitan voltan tinggi dengan wayar-reka bentuk luka, memberikan bilangan lilitan yang tinggi untuk memastikan pengagihan voltan seragam dan prestasi penebat yang sangat baik. Penggulungan voltan-rendah menggunakan binaan kerajang untuk mengendalikan arus yang lebih tinggi dengan cekap sambil meminimumkan kerugian. Konfigurasi kumpulan vektor YNyn0 menyokong neutral dibumikan pada kedua-dua sisi voltan tinggi dan rendah, meningkatkan keselamatan dan kestabilan sistem-keperluan utama untuk aplikasi fotovoltaik. Selain itu, penarafan voltan dwi{9}}rendah membenarkan sambungan fleksibel kepada pelbagai konfigurasi beban, meningkatkan kebolehpercayaan sistem keseluruhan dan kebolehsuaian dalam projek tenaga solar.
2.3 Tangki
Transformer yang dipasang pada pad 2250 kva termasuk tangki minyak tertutup yang diperbuat daripada keluli lembut, disalut dengan kemasan serbuk putih yang teguh (RAL 9003) untuk meningkatkan rintangan kakisan. Penutup berbolted memastikan pengedap yang selamat, melindungi minyak penebat di dalamnya.
Pengubah mempunyai radiator beralun yang disepadukan pada kedua-dua belah dan belakang tangki minyak, yang berfungsi sebagai elemen penyejukan pasif dengan meningkatkan kawasan permukaan luaran untuk perolakan udara semula jadi. Radiator ini dikimpal dengan selamat dan mengelak-disambungkan kepada badan tangki utama untuk memastikan operasi bebas-kebocoran di bawah kitaran haba. Kimpalan ketepatan pada antara muka memastikan kekuatan mekanikal dan-integriti ketat minyak, di samping membenarkan pengembangan haba tanpa menjejaskan kestabilan struktur atau prestasi penyejukan.

2.4 Perhimpunan Akhir

Pada peringkat pemasangan akhir, pengubah terpasang pad 2250 kVA-ini direka bentuk untuk aplikasi tenaga suria dilengkapi dengan enam sesendal HV bertebat boleh pisahkan 200A, sesendal neutral (H0) khusus dan sesendal LV jenis-cast spade-resin yang menampilkan terminal 12 lubang.
Sistem perlindungan pengubah termasuk tiga fius bayonet, -fius pengehad (CLF) semasa dan penangkap kilat jenis siku-dengan varistor oksida logam yang mematuhi piawaian IEEE 386, memastikan lonjakan yang teguh dan perlindungan kerosakan dalam konfigurasi hadapan-mati.
Pad pembumian yang dipasang pada kedua-dua bahagian HV dan LV meningkatkan keselamatan pemasangan dan kebolehpercayaan operasi.
03 Ujian
Ujian Rutin dan Standard Pengujian
1. Pengukuran Rintangan: Mengikut IEEE C57.12.90-2021 Klausa 5
2. Ujian Nisbah: Mengikut IEEE C57.12.90-2021 Klausa 7
3. Ujian hubungan-fasa: Menurut IEEE C57.12.90-2021 Klausa 6
4. Tiada Kehilangan Beban dan Tiada Arus Beban: Menurut IEEE C57.12.90-2021 Klausa 8
5. Kerugian Beban, Voltan Impedans dan kecekapan: Menurut IEEE C57.12.90-2021 Klausa 9
6. Ujian Voltan Gunaan: Mengikut IEEE C57.12.90-2021 Klausa 10.6
7. Ujian Tahan Voltan Teraruh: Menurut IEEE C57.12.90-2021 Klausa 10.5.1
8. Pengukuran Rintangan Penebat
9. Ujian Kebocoran dengan Tekanan untuk Transformer Rendam Cecair: Ujian kebocoran pada 20KPa hendaklah dijalankan selama 12 jam tanpa kebocoran. Tiada ubah bentuk kekal.
Keputusan Ujian
|
Tidak. |
Item Ujian |
Unit |
Nilai Penerimaan |
Nilai Terukur |
Kesimpulan |
|
1 |
Pengukuran Rintangan |
% |
Kadar ketidakseimbangan rintangan maksimum |
1.97 |
lulus |
|
2 |
Ujian Nisbah |
% |
Sisihan nisbah voltan pada pengetuk utama: Kurang daripada atau sama dengan 0.5% Simbol sambungan: YNyn0 |
-0.14% ~ 0.11% |
lulus |
|
3 |
fasa-ujian perkaitan |
/ |
YNyn0 |
YNyn0 |
lulus |
|
4 |
Tiada-kehilangan beban dan arus pengujaan |
/ |
I0:: memberikan nilai yang diukur |
0.22% |
lulus |
|
P0: berikan nilai terukur(t:20 darjah ) |
2.200kW |
||||
|
Toleransi untuk tiada kehilangan beban ialah +10% |
/ |
||||
|
5 |
Kehilangan beban voltan impedans dan kecekapan |
/ |
t:85 darjah Toleransi untuk impedans ialah ±7.5% Toleransi untuk jumlah kehilangan beban ialah +6% |
/ |
lulus |
|
Z%: nilai yang diukur |
5.88% |
||||
|
Pk: nilai yang diukur |
14.325kW |
||||
|
Pt: nilai yang diukur |
16.525 kW |
||||
|
Kecekapan tidak kurang daripada 99.52% |
99.52% |
||||
|
6 |
Ujian Voltan Gunaan |
kV |
HV/: 34kV 60s LV/: 10kV 60s |
Tiada keruntuhan voltan ujian berlaku |
lulus |
|
7 |
Ujian Tahan Voltan Teraruh |
kV |
Voltan terpakai (KV):2Ur |
Tiada keruntuhan voltan ujian berlaku |
lulus |
|
Tempoh:48 |
|||||
|
Kekerapan (HZ): 150 |
|||||
|
8 |
Ujian Kebocoran |
kPa |
Tekanan terpakai: 20kPA |
Tiada kebocoran dan tiada kerosakan |
lulus |
|
Tempoh:12j |
|||||
|
9 |
Pengukuran Rintangan Penebat |
GΩ |
HV-LV ke Ground : |
2.01 |
/ |
|
LV-HV ke Ground: |
1.66 |
||||
|
HV&LV ke Ground |
1.03 |




04 Pembungkusan dan Penghantaran


05 Tapak dan Ringkasan
Transformer 2250 kVA tiga-pad fasa-ini direka khas untuk projek PV solar berskala utiliti-di pasaran AS. Ia menyokong pengagihan kuasa yang stabil dan selamat dengan ciri yang memenuhi piawaian keselamatan AS, memastikan integrasi yang boleh dipercayai ke dalam ladang solar dan sistem tenaga boleh diperbaharui.
Dilengkapi dengan penebat dan penyejukan termaju, ia memberikan prestasi yang cekap,-mesra alam yang ideal untuk aplikasi tenaga bersih. Komponen perlindungan yang teguh memastikan operasi yang selamat dalam persekitaran luar yang keras.
Transformer kami direka bentuk untuk memenuhi permintaan yang semakin meningkat bagi sektor tenaga boleh diperbaharui AS. Hubungi kami untuk penyelesaian yang disesuaikan untuk menjanakan projek tenaga solar anda.

Cool tags: 2250 kva pad dipasang pengubah, pengilang, pembekal, harga, kos
You Might Also Like
500 kVA Pad Depan Mati Dipasang Transformer-24.94/0....
150 kVA Pengubah Isi Cecair-13.2/0.48 kV|Kanada 2024
Pengubah Pelekap Pad 500kVA-14.4/0.208 kV|Amerika Sy...
1500 kVA Ansi C57 12.34 Transformer-23/0.44 kV|Salva...
2000 kVA Pad Dipasang Transformer-24/0.48 kV|Amerika...
500 kVA Pad Mount Transformer-13.8/0.48 kV|Amerika S...
Hantar pertanyaan












