2000 KVA Cooper Power Systems Pad Mounted Transformers-33.26/0.48 KV|Amerika Syarikat 2025
Kapasiti: 2000 kVA
Voltan: 33.26/0.48kV
Ciri: dengan penangkap
Jiangshan Scotech Electrical Co., Ltd ialah salah satu pengeluar dan pembekal yang paling boleh dipercayai bagi pengubah lekap pad sistem kuasa cooper 2000 kva-33.26/0.48 kv|usa 2025 di China. Sila berasa bebas untuk membeli produk yang menjimatkan kos untuk dijual di sini dan dapatkan gambar rajah dari kilang kami. Hubungi kami untuk butiran lanjut.

Pad-Transformer Dipasang: Tempat Kejuruteraan Tahan Lama Bertemu Pengagihan Pintar.
01 Am
1.1 Penerangan Projek
2000 kVA tiga fasa yang dipasang pengubah telah dihantar ke Amerika Syarikat pada tahun 2025. Kuasa undian pengubah ialah 2000 kVA dengan penyejukan KNAN. Voltan tinggi ialah 33.26GrdY/19.203 kV dengan julat penorehan ±2*2.5% (NLTC), voltan rendah ialah 0.48Y/0.277 kV, mereka membentuk kumpulan vektor YNyn0.
Disesuaikan untuk senario pengedaran suria, storan tenaga, komersil dan perindustrian, transformer yang dipasang pada pad sistem kuasa cooper SCOTECH menggabungkan prestasi yang dioptimumkan dan reka bentuk tertumpu-pengguna untuk memenuhi keperluan-yang pelbagai di tapak. 3-fasa 5-teras anggota badan dan kecekapan mematuhi DOE-memaksimumkan penggunaan tenaga, kelebihan kritikal untuk sistem tenaga boleh diperbaharui di mana setiap watt dikira. Penggunaan cecair FR3 menghapuskan bahaya kebakaran dan risiko alam sekitar, menjadikannya pilihan{11}}untuk pemasangan berhampiran kawasan kediaman, pusat data dan projek tenaga hijau. Penahan lonjakan terbina dalam-melindungi pengubah daripada pancang voltan- ciri yang mesti-ada untuk persediaan pad luar-yang terdedah kepada cuaca yang tidak menentu. Kabinet meter -yang dipasang di sisi menyelaraskan-operasi tapak, daripada pemantauan beban hingga pemeriksaan penyelenggaraan, manakala kemasan putih bersalut serbuk RAL 9003-yang licin menahan sinaran UV, karat dan kakisan kimia, memastikan estetika dan kefungsian jangka panjang. Sama ada untuk ladang solar terikat grid atau hab komersial bandar, pengubah ini menyampaikan pengagihan kuasa yang lancar dan mampan.
1.2 Spesifikasi Teknikal
Sistem kuasa cooper 2000 kVA pad dipasang transformer spesifikasi jenis dan helaian data
|
Dihantar kepada
USA
|
|
tahun
2025
|
|
taip
Pengubah yang dipasang pada pad
|
|
Standard
IEEE Std C57.12.34-2022
|
|
Kuasa Dinilai
2000 kVA
|
|
Kekerapan
60HZ
|
|
fasa
3
|
|
suapan
gelung
|
|
Depan
Mati
|
|
Jenis Penyejukan
KNAN
|
|
Voltan Utama
33.26GrdY/19.203kV
|
|
Voltan Sekunder
0.48Y/0.277 kV
|
|
Bahan Penggulungan
aluminium
|
|
Kumpulan Vektor
YNyn0
|
|
Impedans
5.75%
|
|
Kecekapan
99.51%
|
|
Ketik Penukar
NLTC
|
|
Julat Ketik
±2*2.5%
|
|
Tiada Kehilangan Beban
1.95 kW
|
|
Mengenai Kehilangan Beban
13.15 kW
|
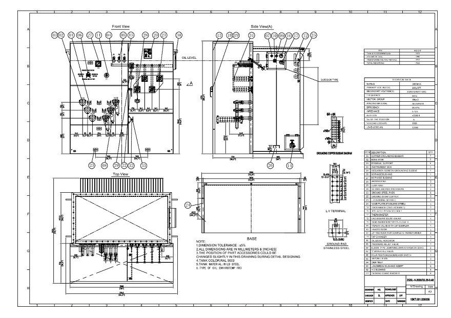
1.3 Lukisan
Lukisan rajah transformer dipasang pad 2000 kVA dan saiz.
![]() |
![]() |
02 Pembuatan
2.1 Teras

Teras besi pengubah yang dipasang pada pad sistem kuasa cooper dibina dengan kepingan keluli silikon berlapis sejuk-berlapis berkualiti tinggi, yang direka bentuk untuk meminimumkan kehilangan arus pusar dan histeresis. Ia membentuk litar magnet pengubah untuk pengaliran fluks yang cekap, menyediakan sokongan mekanikal untuk belitan, dan mempunyai pembumian yang betul untuk memastikan operasi yang selamat dan stabil dengan kecekapan tenaga yang optimum.
2.2 Penggulungan
Gegelung (penggulungan) transformer yang dipasang pada pad sistem kuasa cooper diperbuat daripada konduktor kuprum/aluminium yang dililit pada bahagian-voltan tinggi (HV) dan voltan-rendah (LV), dibalut dengan bahan penebat yang teguh (seperti kertas berlamina) untuk pengasingan elektrik. Luka di sekeliling teras, ia mematuhi piawaian penebat/terma IEEE (disesuaikan dengan{3}}persekitaran terendam cecair), memastikan kestabilan mekanikal terhadap tekanan pemasangan/operasi dan membolehkan penukaran voltan dan penghantaran kuasa yang cekap.

2.3 Tangki

Tangki pengubah yang dipasang pada pad sistem kuasa cooper ialah kepungan keluli yang dikimpal dan dimeterai yang direka untuk pemasangan luar,{0}}aras tanah. Ia menempatkan pemasangan teras dan gegelung serta diisi dengan sama ada minyak mineral atau cecair dielektrik yang kurang-mudah terbakar untuk penebat dan penyejukan. Tangki ini teguh dan tahan-gangguan, dengan profil-rendah, biasanya reka bentuk rusuk atau beralun untuk meningkatkan kekuatan dan pelesapan haba. Semua bahagian hidup ditutup dengan selamat di dalam, manakala petak luaran yang boleh dikunci menyediakan akses kepada sambungan kabel primer dan sekunder, sesendal dan peranti pelindung, memastikan keselamatan untuk orang awam dan kakitangan utiliti.
2.4 Bahagian Aktif
Bahagian aktif (pemasangan teras) pengubah yang dipasang pada pad sistem kuasa cooper dalam imej ialah komponen teras bersepadu: ia terdiri daripada tiga-belitan berpenebat fasa (digulung dan dibalut dengan bahan penebat) yang dipasang pada teras besi berlamina, dipasangkan dengan wayar plumbum berpenebat (digabungkan untuk organisasi) dan bingkai sokongan logam. Pemasangan ini dibetulkan dan berpenebat untuk memastikan koordinasi elektrik-magnet yang stabil antara teras dan belitan, manakala antara muka rizab petunjuk untuk menyambungkan komponen luaran, menyediakannya untuk pemasangan ke dalam tangki pengubah-semuanya mematuhi penebat elektrik dan piawaian kestabilan mekanikal.

03 Ujian
Transformer yang dipasang pada pad-menjalani satu siri ujian yang ketat untuk memastikan kebolehpercayaan dan keselamatan. Ini termasuk ujian rutin pada setiap unit, seperti pengukuran rintangan penebat, ujian nisbah pusingan, pengesahan kekutuban dan tiada-ukuran beban/kehilangan. Selain itu, ia tertakluk kepada ujian dielektrik, termasuk voltan terpakai dan ujian potensi teraruh, untuk mengesahkan integriti penebat. Semua unit juga mesti lulus pemeriksaan mekanikal dan operasi aksesori seperti penukar pili, serta pemeriksaan kawalan akhir. Ujian jenis, termasuk ujian kenaikan suhu dan ujian tahan litar- pintas, dilakukan pada unit perwakilan untuk mengesahkan reka bentuk.


04 Pembungkusan dan Penghantaran
4.1 Pembungkusan

Pembungkusan transformer yang dipasang pada pad sistem kuasa cooper mematuhi piawaian antarabangsa dan -keperluan khusus projek, menggunakan bekas kayu berfumigasi atau bingkai keluli bertetulang dengan penimbal kalis kejutan dalaman (buih/getah) untuk melindungi tangki, sesendal dan aksesori. Ia termasuk perlindungan tertutup terhadap lembapan/karat, pelabelan piawai (tanda amaran, maklumat produk, tanda "Kekal Tegak"/"Kas Kejutan") yang dilekatkan pada setiap kedudukan yang ditentukan, dan pengikat selamat untuk kestabilan semasa transit, memastikan unit kekal utuh sehingga penghantaran.
4.2 Penghantaran
Pengangkutan DDP bagi sistem kuasa cooper transformer yang dipasang pada pad memerlukan penjual bertanggungjawab sepenuhnya untuk pembungkusan-lembapan yang teguh, kalis kejutan dan kalis lembapan (melindungi teras, belitan, tangki dan aksesori), pilih pengangkutan laut/darat yang sesuai untuk peralatan berat, pelepasan kastam yang lengkap, meliputi semua tugas dan cukai, mematuhi peraturan IMDG, DOT, dan peraturan pengangkutan antarabangsa yang tidak rosak untuk penghantaran dan pengangkutan yang selamat. destinasi yang ditetapkan untuk kegunaan sedia-untuk-dipasang.

05 Tapak dan Ringkasan
Di SCOTECH, pengubah terpasang pad kami-sebagai penanda aras untuk kebolehpercayaan, kecekapan dan kecemerlangan kejuruteraan dalam sistem pengagihan kuasa. Dibina dengan struktur-tahan kakisan yang tertutup sepenuhnya dan teknologi teras kehilangan-rendah yang canggih, ia memberikan prestasi yang konsisten dan tidak terganggu dengan penyelenggaraan yang minimum, mengurangkan kos operasi dan masa henti sepanjang kitaran hayatnya.
Kami mengutamakan ketepatan dan fleksibiliti dalam setiap unit yang kami keluarkan. Daripada penilaian voltan tersuai kepada ciri keselamatan yang dipertingkatkan, pasukan kami bekerja rapat untuk menghasilkan penyelesaian yang sejajar dengan spesifikasi teknikal dan permintaan operasi anda yang tepat. Disokong oleh proses kawalan kualiti yang ketat dan-sokongan selepas jualan yang komprehensif, transformer kami adalah bukti komitmen kami untuk menyampaikan-nilai jangka panjang dan ketenangan fikiran kepada setiap pelanggan. Pilih SCOTECH untuk transformer yang bukan sahaja memenuhi piawaian industri-mereka menetapkannya. Bekerjasama dengan kami, dan biarkan kepakaran kami menguasai keperluan infrastruktur kuasa anda yang paling kritikal.

Cool tags: sistem kuasa cooper pad dipasang transformer, pengilang, pembekal, harga, kos
You Might Also Like
2500 kVA Pengubah Elektrik Kediaman-34.5/0.6 kV|Amer...
400 kVA Padmount Transformer-23/0.4 kV|Chile 2024
500 kVA Pad Utiliti Dipasang Transformer-24/0.48 kV|...
500 kVA Pad Mount Transformer-13.8/0.48 kV|Amerika S...
2000 KVA Bayonet Fius Pad Dipasang Transformer-13.8/...
2000 KVA Pusat Tenaga Pad Dipasang Transformer-24.9/...
Hantar pertanyaan











