2000 KVA Dalam Pad Dipasang Transformer-34.5/0.48 KV|Amerika Syarikat 2025
Kapasiti: 2000 kVA
Voltan: 34.5/0.48kV
Ciri: kecekapan JAS
Jiangshan Scotech Electrical Co., Ltd ialah salah satu pengeluar dan pembekal yang paling boleh dipercayai 2000 kva dalam pad mounted transformer-34.5/0.48 kv|usa 2025 di China. Sila berasa bebas untuk membeli produk yang menjimatkan kos untuk dijual di sini dan dapatkan gambar rajah dari kilang kami. Hubungi kami untuk butiran lanjut.

Pantau, Urus dan Optimumkan. Pad Pintar-Pengubah Dilekapkan untuk Grid Berdaya Tahan.
01 Am
1.1 Penerangan Projek
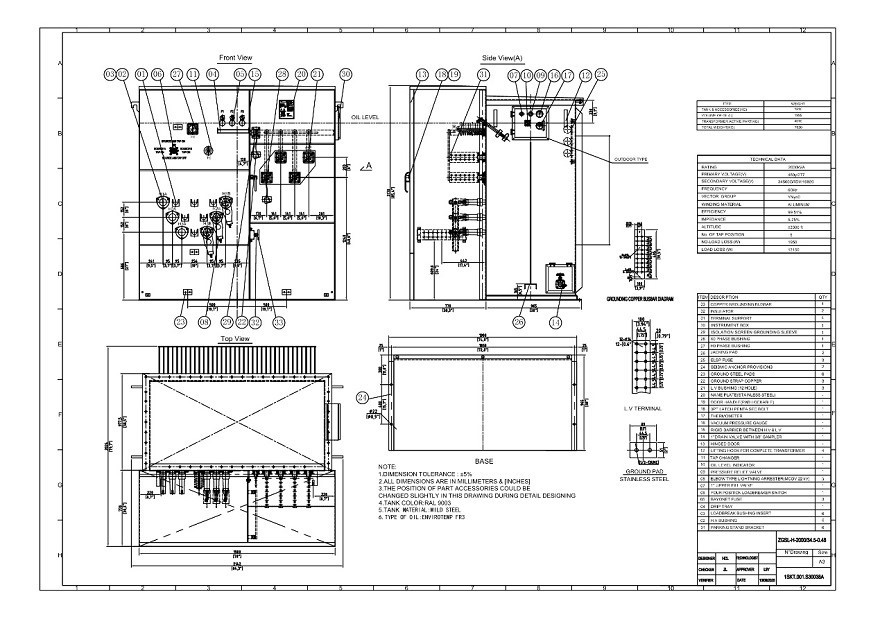
2000 kVA tiga fasa yang dipasang pengubah telah dihantar ke Amerika Syarikat pada tahun 2025. Kuasa undian pengubah ialah 2000 kVA dengan penyejukan KNAN. Voltan tinggi ialah 34.5GrdY/19.92 kV dengan julat penorehan ±2*2.5% (NLTC), voltan rendah ialah 0.48Y/0.277 kV, mereka membentuk kumpulan vektor YNyn0.
Transformer yang dipasang pada pad SCOTECH menonjol sebagai penyelesaian-berprestasi tinggi, kos{1}}efektif untuk keperluan pengagihan kuasa moden- yang penuh dengan ciri utama yang membezakannya dalam pasaran. Mempunyai teras anggota 3-fasa 5-dan pematuhan kecekapan DOE, ia mengurangkan sisa tenaga dan mengurangkan{11}}perbelanjaan operasi jangka panjang. Dipenuhi dengan cecair selamat api FR3-, ia mengutamakan keselamatan dan kemampanan, selaras dengan peraturan alam sekitar global. Penahan lonjakan bersepadu dan kabinet meter -yang dipasang di sisi menambah nilai tambahan dengan memudahkan perlindungan dan pengurusan di tapak, manakala kemasan putih bersalut serbuk RAL 9003 yang tahan lama memastikan perkhidmatan yang boleh dipercayai selama bertahun-tahun dalam persekitaran luar. Padat, mudah dipasang dan dibina untuk bertahan, pengubah ini ialah pilihan pintar untuk pengedar, EPC dan pemaju projek yang mencari kualiti dan kecekapan dalam satu pakej.
1.2 Spesifikasi Teknikal
Jenis spesifikasi transformer terpasang pad 2000 kVA dan helaian data
|
Dihantar kepada
USA
|
|
tahun
2025
|
|
taip
Pengubah yang dipasang pada pad
|
|
Standard
IEEE Std C57.12.34-2022
|
|
Kuasa Dinilai
2000 kVA
|
|
Kekerapan
60HZ
|
|
fasa
3
|
|
suapan
gelung
|
|
Depan
Mati
|
|
Jenis Penyejukan
KNAN
|
|
Voltan Utama
34.5GrdY/19.92 kV
|
|
Voltan Sekunder
0.48Y/0.277 kV
|
|
Bahan Penggulungan
aluminium
|
|
Kumpulan Vektor
YNyn0
|
|
Impedans
5.75%
|
|
Kecekapan
99.51%
|
|
Ketik Penukar
NLTC
|
|
Julat Ketik
±2*2.5%
|
|
Tiada Kehilangan Beban
1.95 kW
|
|
Mengenai Kehilangan Beban
13.15 kW
|
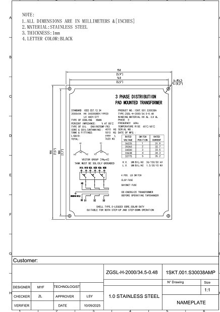
1.3 Lukisan
Lukisan rajah transformer dipasang pad 2000 kVA dan saiz.
![]() |
![]() |
02 Pembuatan
2.1 Teras

Tiga-fasa lima-teras besi anggota pengubah yang dipasang pad dalam diperbuat daripada kepingan keluli silikon berlapis sejuk-berlapis, yang terdiri daripada tiga anggota utama (untuk penggulungan tiga-gegelung fasa) dan dua anggota sisi. Anggota sisi menyediakan laluan untuk sifar-jujukan fluks magnet, mengurangkan-kehilangan beban dan bunyi operasi. Reka bentuknya yang padat sesuai dengan ruang tangki pengubah yang dipasang pad, menawarkan kestabilan mekanikal yang kukuh untuk menyokong belitan, dan memastikan pengaliran magnet yang cekap untuk operasi pengedaran luar yang boleh dipercayai.
2.2 Penggulungan
Penggulungan pengubah yang dipasang pad dalam (komponen bergelung yang dibalut dengan kertas penebat beralun dalam imej) terdiri daripada konduktor kuprum/aluminium yang dililit ke bahagian voltan-tinggi dan{1}}rendah, berlapis dengan kadbod penebat untuk pengasingan elektrik. Luka di sekeliling anggota utama teras pengubah (disusun dalam tiga fasa), ia memenuhi penebat IEEE dan piawaian haba, mempunyai keteguhan mekanikal untuk menahan tekanan transit/operasi, dan membolehkan penukaran voltan dan penghantaran kuasa yang cekap untuk unit yang dipasang pada pad.

2.3 Tangki

Tangki ialah struktur keluli bersalut-tahan kakisan, direka untuk menempatkan komponen teras (teras, belitan) dan minyak penebat sambil memberikan perlindungan tertutup terhadap habuk dan kelembapan. Permukaannya mempunyai-lubang pratetap sebagai antara muka untuk memasang sesendal HV/LV, injap dan aksesori lain, dan ia mempunyai struktur sokongan bawah untuk-peletakan tapak-memenuhi piawaian peralatan pengedaran luar untuk melindungi bahagian dalaman bagi pengendalian yang stabil.
2.4 Bahagian Aktif
Bahagian aktif (pemasangan teras) pengubah yang dipasang pad dalam ini ialah komponen operasi terasnya: ia menyepadukan tiga-belitan berpenebat fasa (dibalut dengan bahan penebat), teras besi berlamina, bar penyambung tembaga dan plumbum berpenebat, semuanya dipasang dengan selamat pada bingkai sokongan logam. Pemasangan ini memastikan penebat elektrik dan kestabilan mekanikal, berfungsi sebagai unit utama untuk penukaran voltan, dan disesuaikan agar sesuai dengan tangki pengubah sambil mematuhi piawaian elektrik yang berkaitan.

2.5 HV Neutral (H0)

HV Neutral (H0) pengubah dipasang pad dalam ini dibawa keluar melalui sesendal H0 yang berasingan (komponen rusuk berpenebat di sini), disambungkan dengan bar bas tembaga. Persediaan ini mengeluarkan -titik neutral sisi voltan tinggi, menyokong konfigurasi pembumian yang fleksibel (cth, pembumian terus) mengikut keperluan pengedaran, menstabilkan potensi neutral dan meningkatkan keselamatan operasi pengubah-semuanya sejajar dengan piawaian elektrik untuk unit yang dipasang pad.
03 Ujian
Mari kita mendalami Ujian Tahan Voltan Teraruh-ujian penebat teras mandatori untuk cecair-transformer yang dipasang pada pad tenggelam sebelum meninggalkan kilang.
Tujuan utamanya ialah untuk mengesahkan prestasi penebat belitan (termasuk pusing-untuk-pusing, lapisan-ke-penebat lapisan) dan penebat utama antara belitan dan teras/tangki. Ia menyerupai voltan lebih operasi dan kesan voltan kilat kilat yang mungkin dihadapi oleh pengubah semasa perkhidmatan sebenar.
Semasa ujian, untuk mengelakkan ketepuan teras, voltan berselang-seli 150Hz (kira-kira 1.73 kali frekuensi undian) digunakan pada belitan. Amplitud voltan ditetapkan kepada "2×voltan fasa terkadar + 1000V" setiap standard dan voltan dikekalkan selama 60 saat. Untuk struktur tiga-fasa pengubah yang dipasang pada pad, voltan ujian biasanya dimasukkan daripada bahagian voltan-rendah; voltan sasaran kemudian teraruh pada bahagian-voltan tinggi melalui aruhan elektromagnet. Sementara itu, turun naik dalam arus bocor, magnitud nyahcas separa (diperlukan kurang daripada 10pC), dan perubahan dalam kehilangan dielektrik belitan dipantau dalam masa nyata.
Terdapat juga semakan sokongan sebelum dan selepas ujian: Sebelum ujian, voltan pecahan (diperlukan lebih besar daripada atau sama dengan 30kV) dan nilai kehilangan dielektrik ( Kurang daripada atau sama dengan 0.5%) minyak penebat mesti diuji untuk memastikan asas penebat cecair-persekitaran terendam adalah mengikut standard. Selepas ujian, rintangan penebat belitan diuji semula-jika tiada kejatuhan ketara dalam nilai, penebat dinilai tidak rosak.


04 Pembungkusan dan Penghantaran
4.1 Pembungkusan
Pembungkusan pengubah yang dipasang pad di dalam menampilkan keluli saluran-tapak kayu padu bertetulang dengan kertas ujian bocor pada dulang. Unit ini dipasang dengan pelindung sudut buih/plastik/kadbod, dibalut dengan filem pelindung, kemudian dimeterai dalam beg kerajang timah -pengering (vakum-dipam dan dipanaskan-ditutup) untuk mengelakkan karat. Ia disarungkan dalam peti kayu berwasap yang ditanda dengan titik forklift dan pusat-penunjuk graviti-. Aksesori yang disertakan (rod kendalian suis beban, sepana T-) diikat pada pangkalan dan pelekat amaran berbilang bahasa-yang mematuhi ROHS-cuaca{12}}dilekatkan mengikut keperluan.

4.2 Penghantaran

Penyelesaian pengangkutan DDP (Delivered Duty Paid) kami menyediakan proses-percuma yang diperkemas dan bimbang untuk pengubah yang dipasang pada pad anda-. Kami menguruskan keseluruhan rantaian logistik-daripada pemuatan selamat dan pengangkutan darat dari asal kepada penghantaran laut, pelepasan kastam, duti import dan penghantaran akhir ke tapak kerja yang anda tentukan. Setiap unit disediakan dengan teliti untuk transit dengan penyekatan yang teguh, pendakap dan perlindungan kalis cuaca. Dengan penghantaran-ke-pintu dan semua kos serta tanggungjawab kami, anda menerima perkhidmatan turnkey yang memastikan transformer anda tiba dengan selamat, mengikut jadual dan mematuhi sepenuhnya peraturan negara destinasi.
05 Tapak dan Ringkasan
Kami bukan sahaja mengeluarkan unit standard; kami menghasilkan penyelesaian yang sesuai dengan keperluan unik anda. Sama ada anda memerlukan konfigurasi voltan tersuai, protokol keselamatan yang dipertingkatkan atau ciri ketahanan khusus, pasukan kami memanfaatkan pengetahuan industri selama beberapa dekad-cara menyampaikan produk yang melebihi jangkaan. Disokong oleh ujian kualiti yang ketat pada setiap peringkat pengeluaran dan perkhidmatan selepas-penjualan responsif, kami berdiri di belakang setiap pengubah yang kami bina.
Apabila anda memilih SCOTECH, anda bukan sekadar membeli peralatan-anda bekerjasama dengan pasukan yang berdedikasi untuk memastikan sistem kuasa anda berjalan lancar, sekarang dan pada masa hadapan. Percaya pada kepakaran kami untuk memperkasakan kejayaan anda dengan kebolehpercayaan yang tidak berbelah bahagi.

Cool tags: dalam pad mounted transformer, pengilang, pembekal, harga, kos
You Might Also Like
Pad Tiga Fasa 2500 kVA-dilekapkan Transformer-13.8/0...
500 kVA Pad Depan Mati Dipasang Transformer-24.94/0....
Harga Transformer Dipasang Pad 1500 kVA-23.9/0.416 K...
5 MVA Pad Mount Transformers-33/0.48 kV|Amerika Syar...
Pengubah Pelekap Pad 150 KVA-13.2/0.208 KV|Amerika S...
2000 KVA Pusat Tenaga Pad Dipasang Transformer-24.9/...
Hantar pertanyaan











